Etat des lieux

La parcelle de cette opération a la particularité d’être traversante. Elle connecte les avenues Aristide Briand et Sully. Ces avenues offrent deux échelles de bâti bien distincts, chacune caractéristique de la ville de Livry Gargan. L’avenue Aristide Briand est une artère importante qui traverse toute la ville pour la relier aux communes avoisinantes. Son front bâti est continu, fait de bâtiments hauts et heterogénes implantés à l’alignement sur rue. L’avenue Sully dessert de petites parcelles où le bâti est essentiellement constitué de pavillons implantés au centre de ces dernières.

C’est assez naturellement que nous avons repartit le programme en deux bâtiments. Adossées aux héberges existantes, ces deux constructions s’articulent autour d’un large jardin. Le premier haut de cinq étages et d’un attique sur rez-de-chaussée aligné sur l’avenue Aristide Briand. Le second est un bâtiment R+3 en retrait de la limite de parcellaire.

Ces deux bâtiments répondent aux situations urbaines dans lesquelles ils s’inscrivent. Les deux bâtiments étant espacés de plus de 17m. Ils ne créent pas de masques d’ombres l’un sur l’autre ou sur les constructions voisines. Cette disposition offre au site un cœur arboré et laisse au sol une grande surface infiltrante. Ce projet repose sur l’agencement traversant du rez-de-chaussée. Doivent s’y organiser les halls, le stationnement des voitures et celui des vélos, tout en offrant un espace planté de pleine terre d’une surface égale à 30% de la parcelle. Notre projet propose de superposer les fonctions plutôt que de les séparer.

Deux bâtiments autour d’un jardin

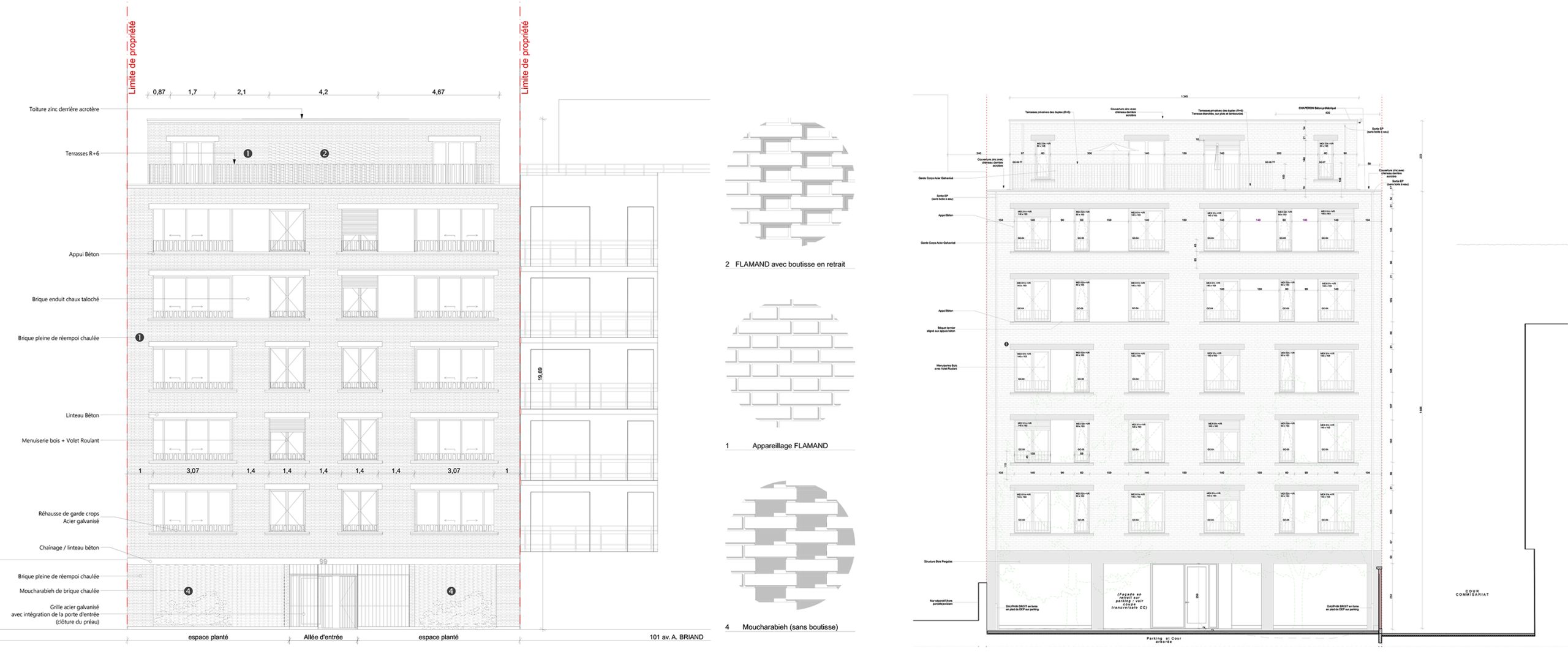
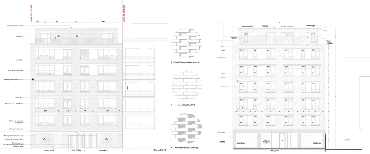
Sur l’avenue Briand, la façade est constituée de cinq tables de brique blanchies et de bois, elles abritent les “espaces de jour” des logements : cuisines et loggias des séjours. Elles forment allège et bas de garde corps pour garantir de l’intimité sans réduire la luminosité. Le rez-de-chaussée s’accroche aux lignes fortes du mur du commissariat et aux rythmes des superpositions de matières et loggias du bâtiment voisin au nord-est.

Le bâtiment donnant sur l’avenue Sully est, quant à lui, posé au-dessus des stationnements. Ceux-ci seront masqués par la végétation plantée dans la bande de 4m de recul, derrière une clôture métallique sur un muret bas. De même matérialité, au dessin analogue à celui côté Briand, ce bâtiment s’intègre à la séquence urbaine par son échelle. Le pli de sa façade crée un redent en creux qui fait écho au front bâti très découpé de la rue. Le volume amincit du côté du commissariat augmente la transparence du rez-de-chaussée.

Nous proposons de la brique de réemploi revêtue d’un enduit à la chaux pour le traitement des façades. L’enduit permettra de maîtriser le surcout lié au reconditionement des brique réemployée. Il apparait que la brique, matériau prédominant à Livry-Gargan, s’imposait pour apporter une insertion urbaine douce et une faible émission de carbone au projet.